portfolio/churchconversion.html Cottage-Reburbishment - Outline Architecture

Portfolio

Cottage Refurbishment, Scottish Borders
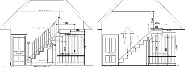
Cottage Refurbishment exterior photograph) Cottage Refurbishment (attic photograph) Cottage Refurbishment (hall and stairs photograph) Cottage Refurbishment (bedroom photograph) Cottage Refurbishment (elevation/plans)

The existing cottage was given a complete internal refurbishment. The attic was converted to create a new bedroom with a new stair inserted in the hall.

<<< Back to main Portfolio page